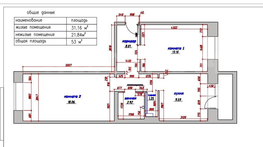
2-к квартира, 53 м², 6/10 эт.

Пензенская область, Пенза, Ладожская улица, 107

4 890 000 руб.

92 265 руб./м²

Описание Объект №5388

Новинка! Продаётся уникальная(среди аналогов) двухкомнатная квартира (56/31/9,6 м²) в кирпичном доме 2011 года.Не угловая, не торцевая. Планировка на две стороны.

Продажа в связи с переездом, один взрослый собственник с 2018 г, полная цена в ДКП.Без долгов и обременений. Возможна покупка в ипотеку от 11.9% годовых( помогу). Разумный торг.

Этаж ликвидный 6й из 11.Из окон открывается вид на тихий двор с детской площадкой и спортивной зоной, с другой стороны 2 детских сада, 2-х корпусная школа и березовая аллея для прогулок. Квартира продаётся с частичным ремонтом, что даёт возможность оформить её по своему вкусу: Смонтирована электрика по всей квартире, в т.ч 2 трассы под кондиционер;лоджия застеклена и отделана евровагонкой;на полу п/сухая стяжка;Стены оштукатурены;Установлена надёжная входная дверь;Закуплена сантехника и керамогранит для санузла(оставим по договорённости).Имеется дизайн-проект.

Дом под управлением ТСЖ,стоит на 2ой линии (не у дороги) ,расположен в районе с развитой инфраструктурой, рядом находятся магазины и остановки общественного транспорта, детский сады и школы,амбулатория, лес. Парковка во дворе за шлагбаумом обеспечивает удобство для автовладельцев.

Имеются ДРУГИЕ варианты проверенных квартир от застройщиков и собственников, с разной отделкой, в г. Пенза и других регионах РФ, в т.ч.не из рекламы. Звоните/пишите, пока вашу будущую квартиру не купил кто-нибудь другой!)

  • Материал дома :

  • Лифт :

  • Мусоропровод :

  • Этаж :

  • Кол-во комнат :

  • Жилая площадь :

  • Тип :

  • Ремонт :

  • Кирпичный

  • Пассажирский

  • Нет

  • 6

  • 2

  • 31 м²

  • Квартира

  • Черновая

  • Год постройки :

  • Парковка :

  • Охрана/Консьерж :

  • Этажность :

  • Площадь :

  • Площадь кухни :

  • Балкон :

  • Отопление :

  • 2011

  • Наземная

  • Нет

  • 10

  • 53 м²

  • 9,6 м²

  • Лоджия

  • Центральное

Карта Пенза, Ладожская улица, 107

Похожая недвижимость

2-к квартира, 55 м², 4/10 эт.
  • Продажа
5 580 000 руб.

Квартира

2-к квартира, 55 м², 4/10 эт.

Пенза, 1-й Онежский проезд, 10