
Московская область, Раменское, Сентябрьская улица, 35
Продаётся земельный участок с объектом незавершённого строительства - домом.
Возможно приобретение по семейной ипотеке со ставкой 6% годовых!
📌 О доме:
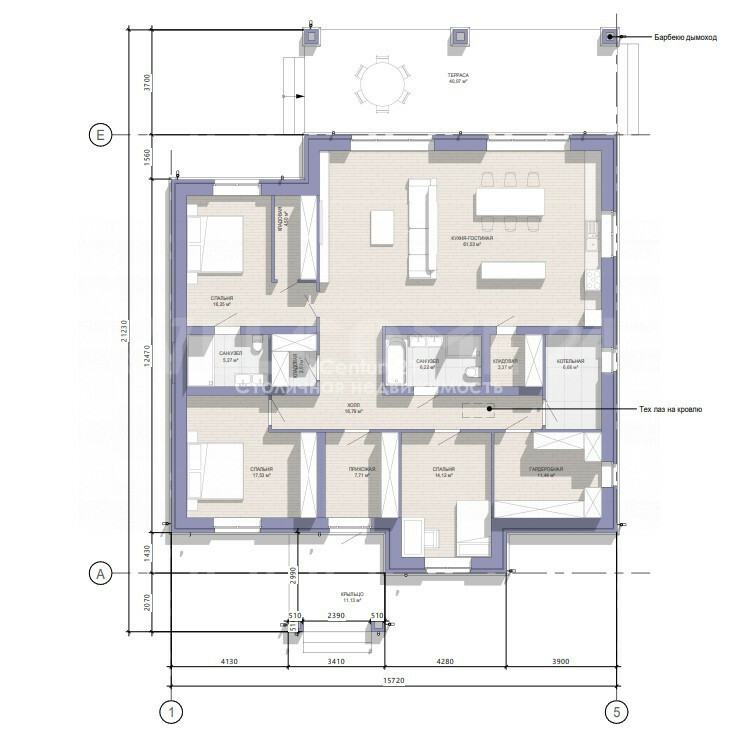
Площадь — 218 м², дом спроектирован из современных материалов (газоблок/паратерм), возможно изменение проекта на каркасный вариант. Уже выполнен надёжный фундамент на монолитной плите с закладными элементами. Есть фотографии всех этапов изготовления фундамента, подтверждающие высокое качество строительных работ. Внутренняя структура дома включает кухню-гостиную площадью 55,9 м², три просторные комнаты, включая хозяйскую спальню, комфортную террасу 29 м², раздельный санузел и ванную комнату, удобное пространство для хранения вещей (гардероб), прихожую, холл и функциональную котельную.
📌 Об участке:
Земельный участок расположен в черте города Раменское, общей площадью 10 соток. Категория земли позволяет индивидуальное жилищное строительство (ИЖС). Прекрасная локация, которая активно развивается, что обеспечит вам комфортное проживание вблизи городской инфраструктуры, а так же станет прекрасным вложением вашего капитала.
✅ Уже готово:
✔️ Бетонный фундамент (монолитная плита);
✔️ Фотографии поэтапного возведения основания;
✔️ Готовая скважина для водоснабжения;
✔️ Проект будущего жилья;
✔️ Надежный подрядчик, готовый завершить строительство по вашему желанию.
🎯 Удобство приобретения: объект находится в частной собственности, прямая продажа, подготовлены необходимые документы для быстрой сделки. Вы можете приобрести недвижимость за наличные средства либо воспользоваться семейной ипотекой с выгодой от ставки всего лишь 6%.
💬 Для дополнительной консультации и расчета ориентировочной стоимости завершения строительства звоните лично, обсудим любые интересующие вопросы.
Позвоните прямо сейчас и сделайте первый шаг навстречу своей мечте — собственному дому!
Площадь участка :
Тип :
Площадь :
Этажность :
Водопровод :
Отопление :
10 сот.
Дом
218 м²
1
Скважина
Нет
Тип участка :
Материал дома :
Ремонт :
Кол-во комнат :
Газ :
ИЖС
Кирпичный
Обычный
4
Нет